29B Glanmire Road, Newlands
4 Bedroom Townhouse
$1,125/ week
Master:
$345
/ week
Standard:
$260
/ week
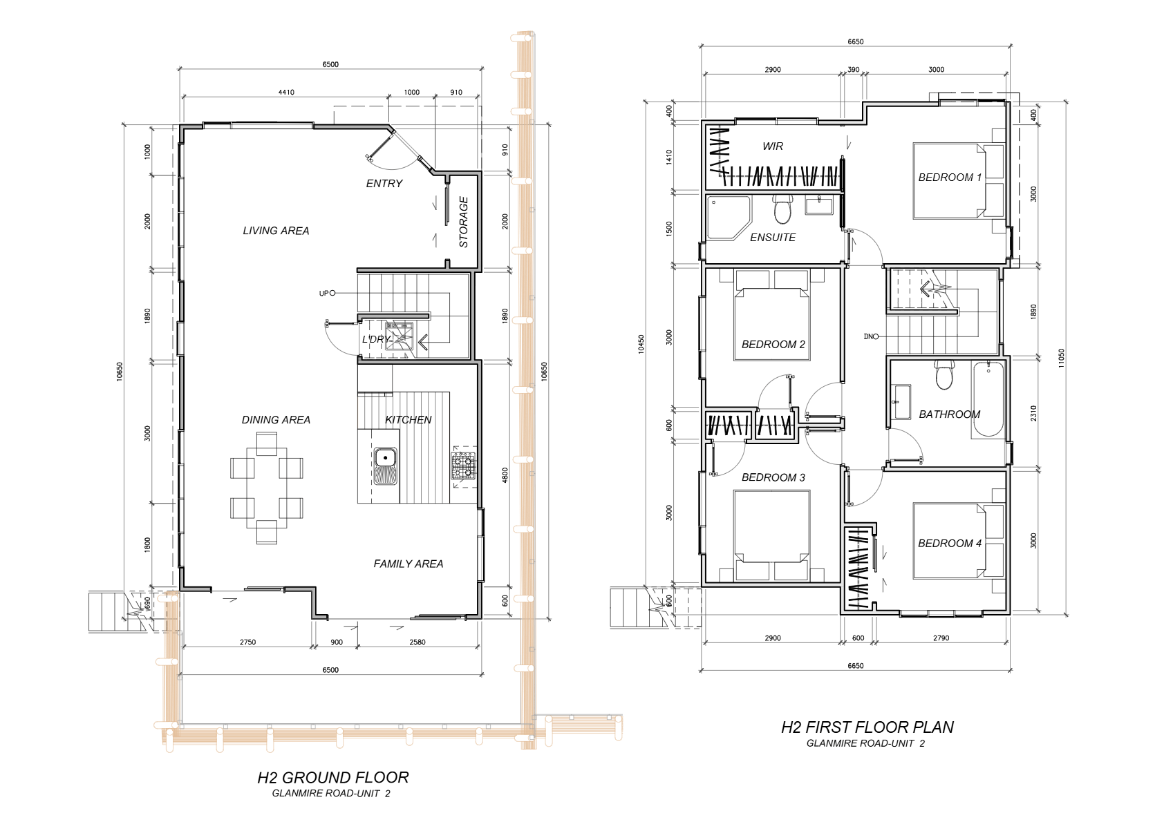
4 Bedrooms
1 Master + 3 Standard
2 Bathrooms
1 Ensuite + 1 Shared
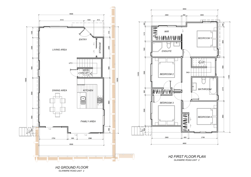
135.7 m²
Ground: 65.7 m²
First: 70 m²
Parking Space
2 off-street parking spaces
+ free on-street parking
Overview
A fully furnished four-bedroom, two-bathroom townhouse combining modern design with a warm, homely feel. The open-plan living and dining area flows into a bright kitchen with quality appliances and generous bench space. Large windows fill the rooms with natural light, while neutral finishes give the home a clean, contemporary style.
The master bedroom includes its own ensuite, and every room is designed to be comfortable and easy to maintain. A private outdoor area and off-street parking add extra convenience for everyday living.
Conveniently located in Newlands, Wellington, this property offers easy access to Johnsonville Mall, New World Newlands, and public transport. Ideal for professionals or students seeking comfortable accommodation in Wellington, quality Wellington rentals, or shared flatmate housing close to amenities.
Show more
Property Features
Fully furnished
Open-plan living
Modern kitchen
4 Beds
Heat pump + double glazing
Private outdoor space
Washer & dryer included
2 Off-street parking
Floor plan
Location
All Homes
All Available Homes
Browse all fully furnished homes available across Wellington.
Ready to Find Your Next Home in Wellington?
Get in touch today to check availability, book a viewing, or start your rental application. Our team is here to help you move into your next fully furnished home with ease.





















